+381 64 933 6000
+381 64 933 8000
Home4You Beograd, Srbija
Avala invest, Beograd, Srbija

Savski venac, Beograd




















Nova atraktivna višespratnica na Savskom vencu, smeštena u rezidencijalnom i mirnom kvartu u Humskoj ulici, bez mnogo saobraćaja i gradske vreve , u neposrednoj blizini Partizanovog stadiona, Hajd parka i Autokomande.
Savremena arhitektura, stručni tim ljudi, najkvalitetniji materijali i oprema renomiranih proizvođača, učinili su da budemo prepoznatljivi po izuzetno visokom kvalitetu gradnje.
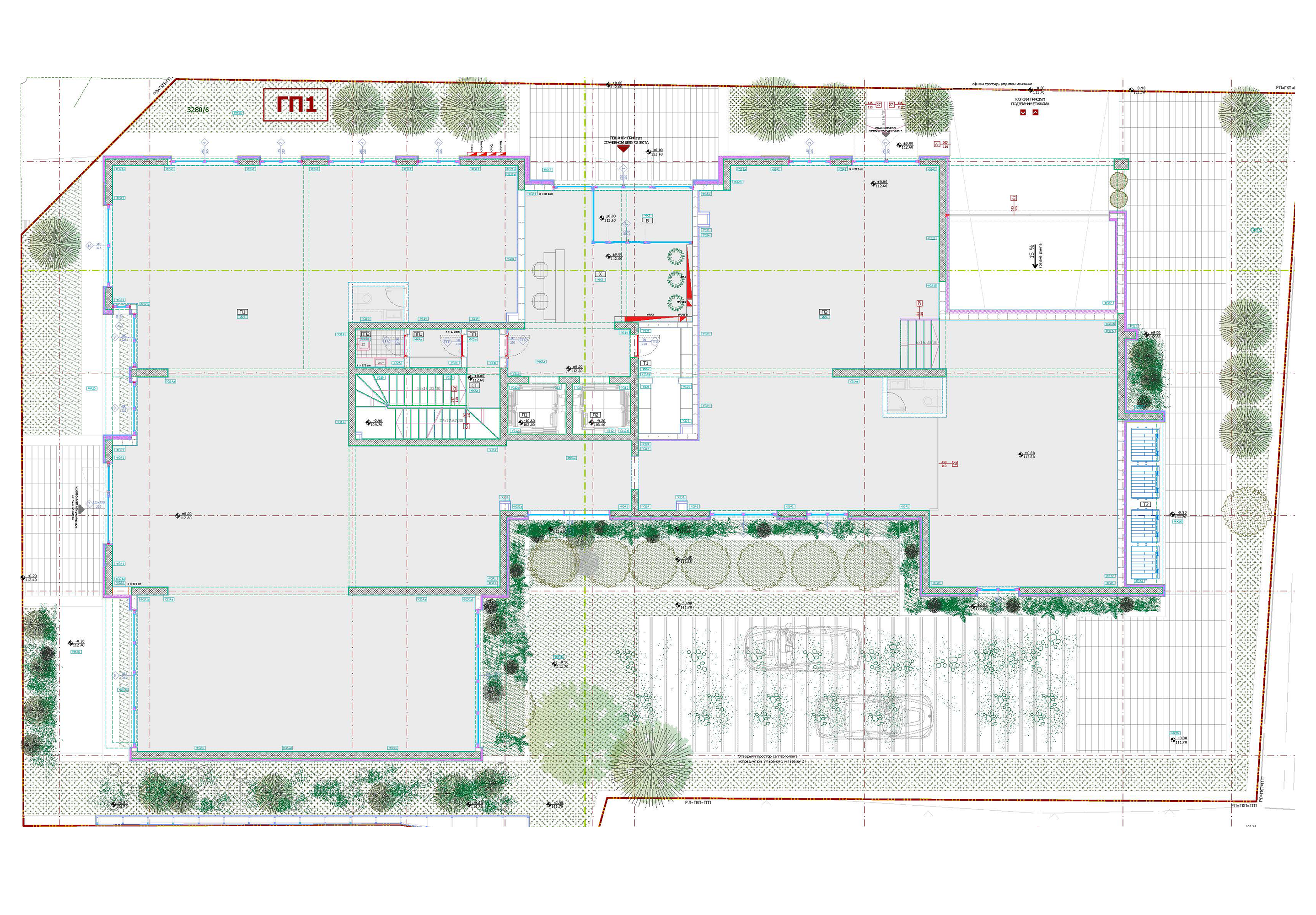
Zahvaljujući ekskluzivnoj gradnji imate mogućnost da podignete svoj životni stil na viši nivo. Nudimo vam 36 stambenih jedinica različitih struktura i kvadratura, od 40m2 do 166m2, u zgradi stambeno-poslovne namene koja će imati 5 spratova ( Pr+4+Ps) i 4 nivoa podzemnih garaža (Su+Po1+Po2+Po3). U prizemlju objekta poslovni prostor od 500m2 sa odvojenom podzemnom garažom od 11 parking mesta.
Oprema svakog stana pažljivo je birana da pruži vrhunsku estetiku i udobnost.
Sve fotografije na sajtu su informativnog karaktera i investitor zadržava pravo na izmene.
| Lokacija | Savski Venac |
| Adresa | Humska 10 |
| Tip objekta | Stambeno- poslovni |
| Status projekta | U pripremi |
| Spratnost | 2Po+Su+P+4+Ps |
| Okvirna kvadratura | 40m2 - 166m2 |
| Lokali | 1 (prizemlje)- 500m2 |
| Početak izgradnje | Decembar 2021. |
| Ukupna površina | 676m2 | Slobodno |
+381 64 933 6000
+381 64 933 8000
Home4you, Beograd, Srbija
Avala invest, Beograd, Srbija